Augusta Elmströms väg, Sturkö

Nyproduktion

På natursköna Sturkö planerar vi att bygga cirka 60 nya lägenheter i ett område med närhet till hav, service och goda bussförbindelser.

Intresseanmälan

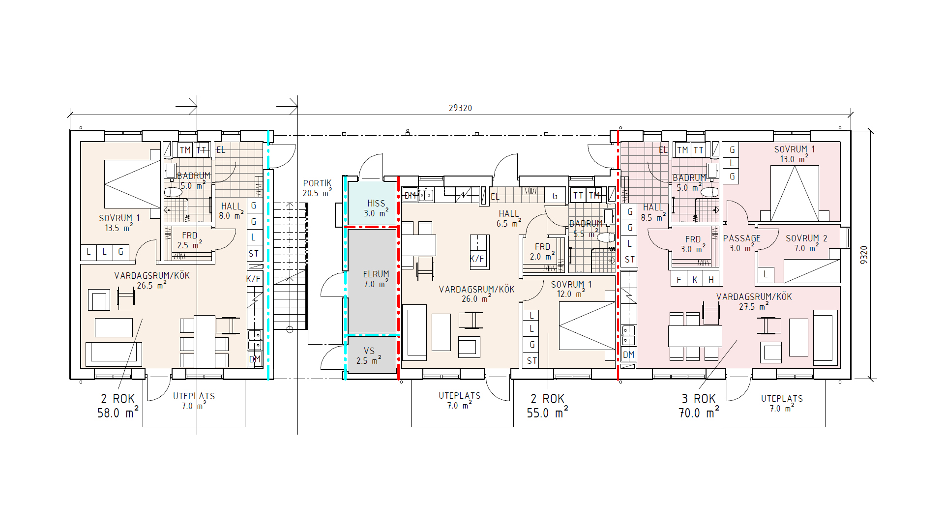
På natursköna Sturkö planerar vi att bygga cirka 60 nya lägenheter i ett område med närhet till hav, service och goda bussförbindelser. Projektet genomförs i tre etapper och inleds med uppförandet av fyra hus i ett och två plan, med fokus på trygga, funktionella och hållbara bostäder som passar olika livssituationer.

Tillgängligt skärgårdsliv

Utformningen av området tar inspiration från den omgivande skärgårdsmiljön, med arkitektur som för tankarna till traditionell ladugårdsbebyggelse i modern tappning. Med ett tydligt fokus på tillgänglighet, bland annat genom hissar i tvåvåningshusen, skapar vi bostäder som fungerar lika bra för barnfamiljer som för äldre.

Inom området anläggs vägar med boendeparkeringar samt förberedd infrastruktur för laddning av elbilar.

Bostäderna planeras med energieffektiva material och smarta planlösningar som gör det enkelt att trivas – oavsett om du flyttar hemifrån, bildar familj eller vill bo bekvämt även längre fram i livet.

Tidplan

Vi planerar att påbörja byggnationen under 2026-2027. Inflyttning beräknas ske under 2027–2029, exakt när är ännu inte bestämt. Vi återkommer med en mer detaljerad tidplan längre fram.

Materialval

Vi återkommer med mer information materialval i lägenheterna när detaljerna är fastställda.

Ett boende där lugnet får ta plats

Sturkö är ett omtyckt område i Karlskronas skärgård där lugnet möter det levande vardagslivet. Här finns närhet till hav, natur och fina rekreationsmiljöer, samtidigt som service, skola och goda kommunikationer med både buss och båt gör det enkelt att ta sig till centrala Karlskrona.

Håll utkik efter uthyrningsstart

När det närmar sig inflyttning kommer lägenheterna att publiceras på vår webbplats.

Registrera dig i vår bostadskö för att ta del av kommande erbjudanden.

Flygvy över ett modernt bostadsområde med flera låga flerbostadshus i rött och svart, utrustade med solpaneler på taken. Husen omges av grönområden med träd, gångvägar, innergård och parkeringsplatser med bilar.

Vill du veta mer?

Vi berättar gärna mer om projektet i den mån vi kan.

Har du frågor eller funderingar är du alltid välkommen att höra av dig.

Kontakta oss

Upp